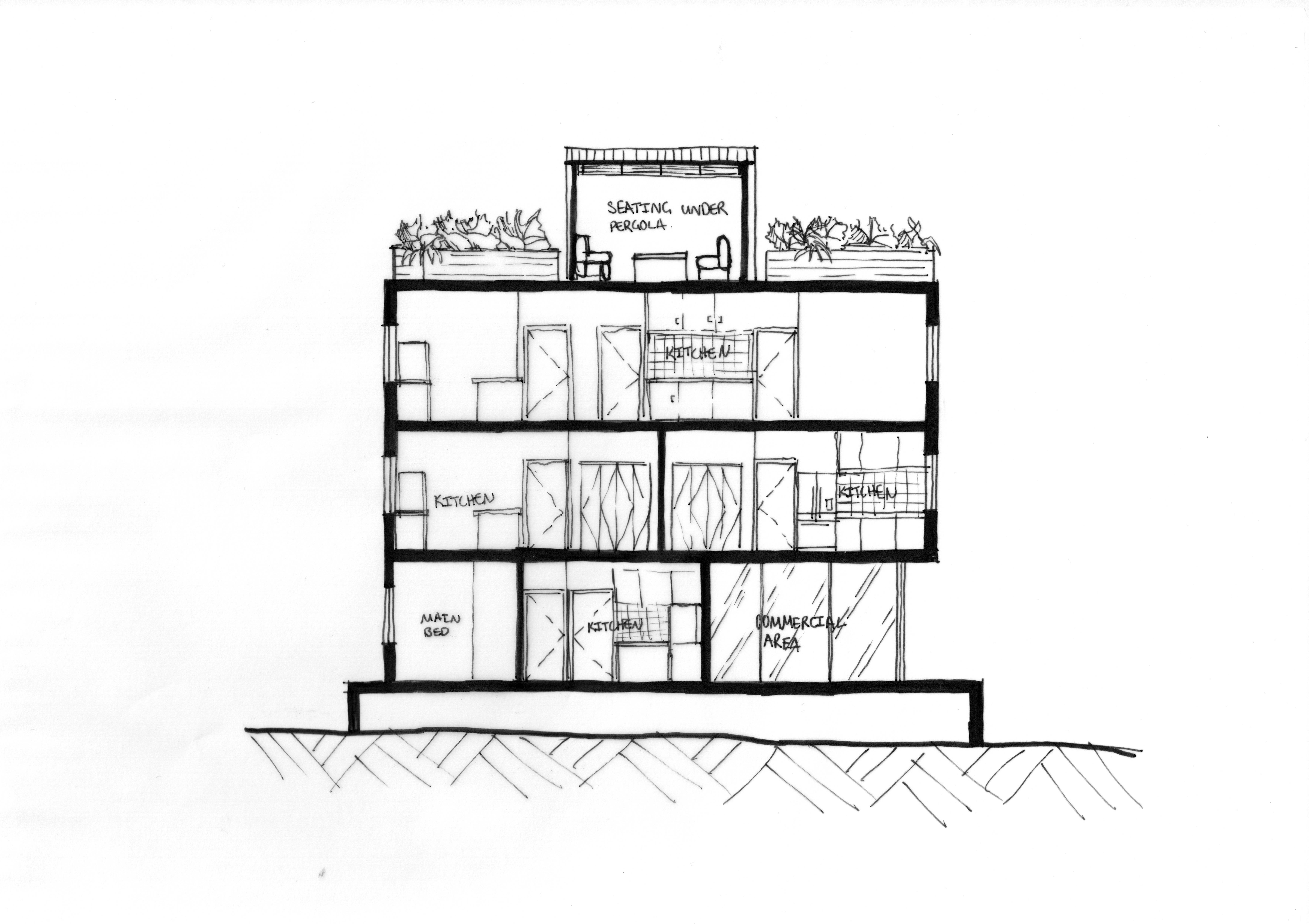
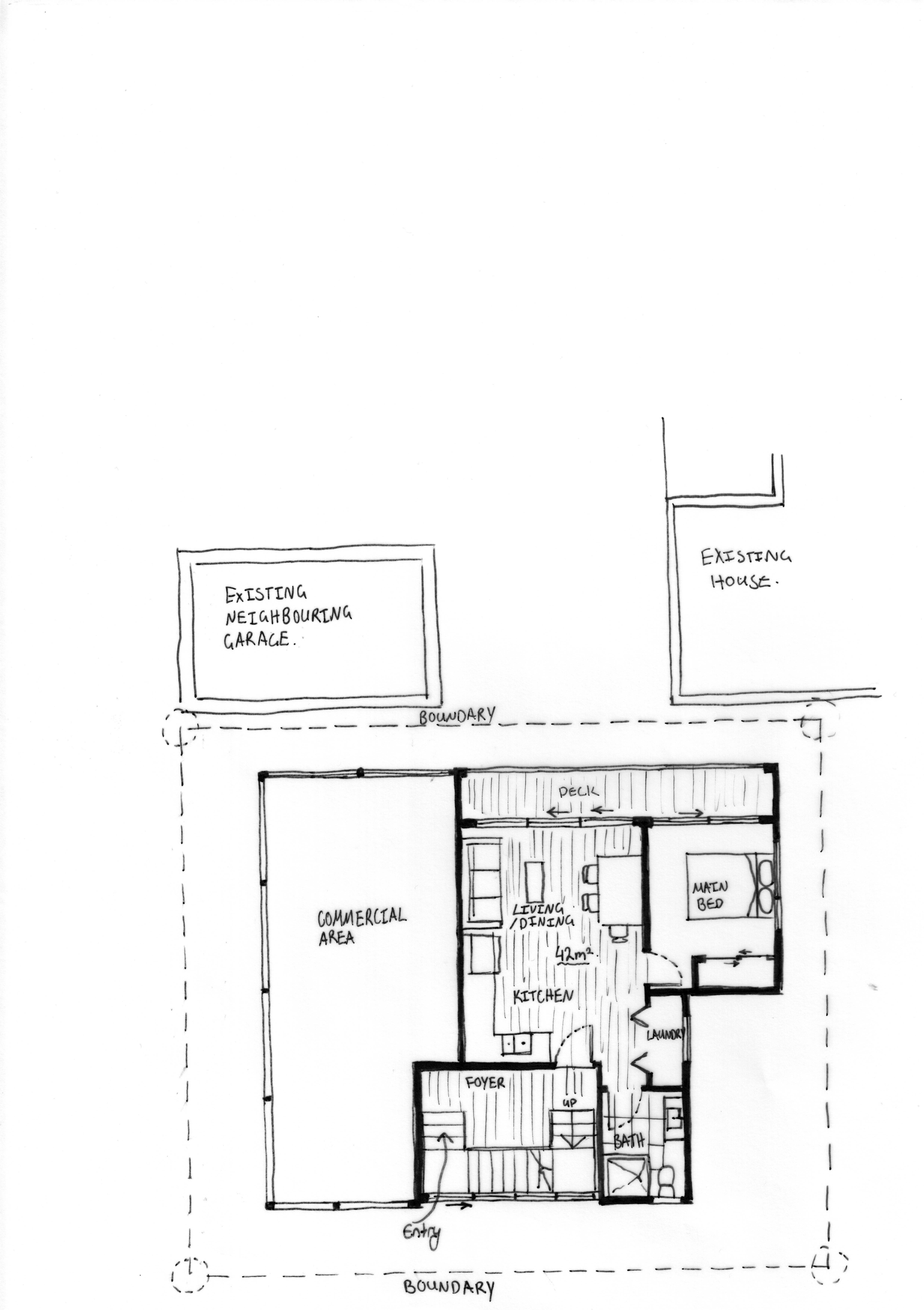
Concept 1
This small apartment building concept has a commercial space on the ground floor, four apartments, and a shared outdoor roof space for the tenants of the building. The site is located in a flood zone so the building sits on an elevated plinth to make it more resilient.






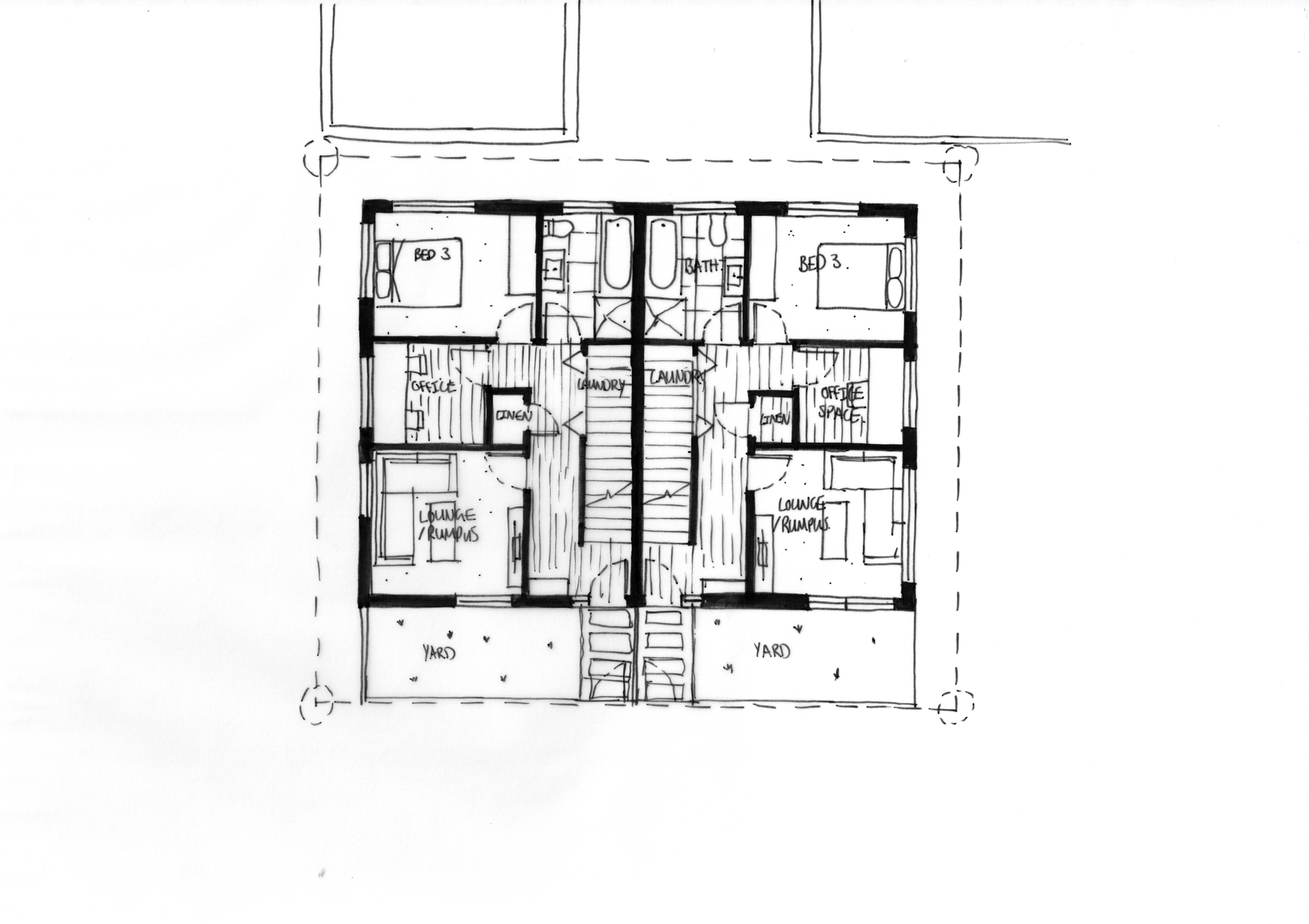
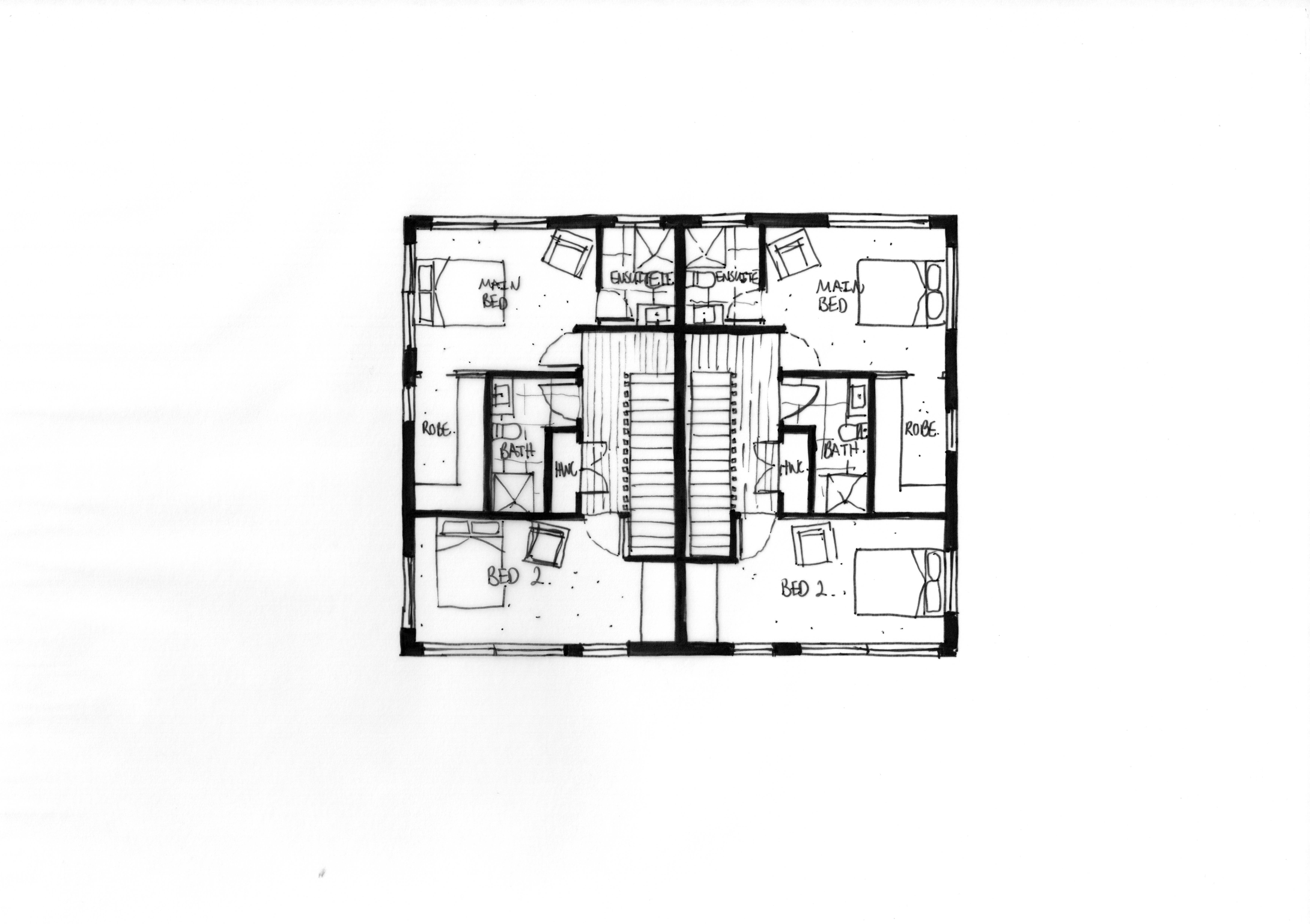
Concept 2
This concept is entirely residential with two large, three-bedroom units. It has bedrooms on the top and ground floor with the main living spaces on the middle floor.






Concept 3
This concept is also entirely residential with three economical, three-bedroom units. It has bedrooms on the top and ground floor with the main living spaces on the middle floor.








